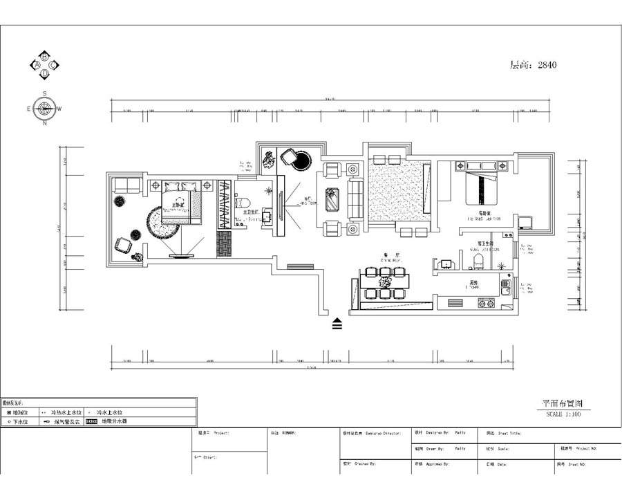
戶型:三居 3#B戶型
-
日期:2016-04-28
-
點擊:1394
戶型分析:

設計效果圖:




官網小區裝修欄目為您提供石家莊小區裝修、石家莊小區裝修案例、石家莊小區裝修案例圖等,在這里可以找石家莊您所在小區,親臨裝修施工現場,同時還可以在線報名預約喜歡的設計師及裝修方案。"/>
首頁
>
找我家
>
日期:2016-04-28
點擊:1394
戶型分析:

設計效果圖:



